1 / 3

Patronus Nieruchomości Biuro nieruchomości

Wyślij wiadomośćKontakt z właścicielem
  • Mieszkanie Inowrocław
  • Mieszkanie Inowrocław
  • Mieszkanie Inowrocław

Mieszkanie Inowrocław

Inowrocław [woj. Kujawsko-Pomorskie, pow. inowrocławski, gm. inowrocławski]

Dodane 4 godziny temu, Czwartek, 2 kwiecień 2026 15:30

350 000 zł 32 m2
Cena:
350 000 zł
Powierzchnia:
32 m2
Cena za metr:
10 938 zł/m2
Pokoje:
2
Piętro:
Parter
ID oferty:
K37500777
Rynek:
Mieszkania na sprzedaż Inowrocław

Opis

Prezentujemy Państwu na sprzedaż mieszkania w prestiżowym budynku z cegły w w uzdrowiskowej części Inowrocławia.

Mieszkania o powierzchniach:

* mieszkanie nr 1 na parterze o powierzchni 76,96m2, składa się z pokoju z aneksem kuchennym (40,77m2), pokoju (13m2), garderoby (7,14m2), łazienki (8,52m2), przedpokoju (7,14m2),

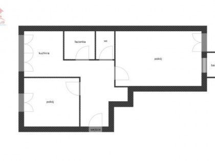
* mieszkanie nr 2 na parterze o powierzchni 32,37m2, składa się z pokoju z aneksem kuchennym o powierzchni (19,07m2), pokoju ( 8,52m2), łazienki (3,28m2), przedpokoju ( 2,36m2),

* mieszkanie nr 5 na II piętrze o powierzchni 75,93m2, składa się z pokoju z aneksem kuchennym (39,48m2), pokoju (13,48m2), garderoby (7,36m2), łazienki (8,52m2), przedpokoju (7,09m2),

* mieszkanie nr 6 na II piętrze o powierzchni 38,97m2, składa się z pokoju z aneksem kuchennym o powierzchni (19,56m2), pokoju ( 13,21m2), łazienki (3,72m2), przedpokoju
( 2,48m2),

* mieszkanie nr 7 na III piętrze o powierzchni 78,03m2, składa się z pokoju z aneksem kuchennym (39,59m2), pokoju (13,38m2), garderoby (8,03m2), łazienki (8,93m2), przedpokoju (8,10m2),

* mieszkanie nr 8 na III piętrze o powierzchni 40,94m2, składa się z pokoju z aneksem kuchennym o powierzchni (19,76m2), pokoju ( 15,51m2), łazienki (3,07m2), przedpokoju (2,60m2).

Istnieje możliwość dokupienia murowanego garażu.

Budynek wielorodzinny, wybudowany w technologii tradycyjnej, murowany z dachem jednospadowym krytym papą.

Serdecznie zapraszamy na prezentację.

Oferujemy bezpłatną pomoc w uzyskaniu kredytu.

Oferta 1664
tel. Pokaż numer telefonu

DANE KONTAKTOWE:
Agnieszka
Pokaż numer telefonu
[email] />
LINK DO OFERTY:
http://patronus.nieuchomosci.pl/numer/1664

Treść niniejszego ogłoszenia nie stanowi oferty handlowej w rozumieniu Kodeksu Cywilnego.

Oferta wysłana z programu IMO dla biur nieruchomości

Numer oferty: 1664
  • Mieszkanie 2 pokojowe na sprzedaż o powierzchni 32 m2
  • Lokalizacja mieszkania: Inowrocław
  • Mieszkanie położone na parterze
  • Data dodania: dzisiaj
  • Data aktualizacji: dzisiaj
  • ID ogłoszenia: K37500777
Wydrukuj Zgłoś naruszenie
Chcesz mieć na oku podobne nieruchomości?
Włącz powiadomienia i nie przegap okazji!
*Mieszkania na sprzedaż Inowrocław, cena: od 297 500 do 402 500 zł, powierzchnia: od 28 do 37 m2

Kontakt

Patronus Nieruchomości Biuro nieruchomości

Wyślij wiadomośćKontakt z właścicielem
Wydrukuj Zgłoś naruszenie

Podobne ogłoszenia

  • Mieszkanie Inowrocław

    Inowrocław

    • 269 153 zł cena
    • 34 m2 powierzchnia
    • 7 917 zł/m2 cena za metr
    • mieszkanie
    • na sprzedaż
    • 2 pokoje
    • 2 piętro

    Prezentujemy Państwu na sprzedaż bardzo atrakcyjną ofertę mieszkania w nowym budownictwie o powierzchni 34,07m2 w Uzdrowiskowym Inowrocławiu. Mieszkanie posiada bardo atrakcyjny...

  • Nowe

    Mieszkanie Inowrocław

    Inowrocław

    • 328 000 zł cena
    • 40 m2 powierzchnia
    • 8 200 zł/m2 cena za metr
    • mieszkanie
    • na sprzedaż
    • 2 pokoje
    • 1 piętro

    Prezentujemy Państwu na sprzedaż mieszkania o wysokim standardzie wykończenia o powierzchni ok.40m2 w nowym bloku w Inowrocławiu. Do mieszkania możliwość dokupienia miejsca post...

  • Nowe

    Mieszkanie Inowrocław

    Inowrocław

    • 255 000 zł cena
    • 39 m2 powierzchnia
    • 6 539 zł/m2 cena za metr
    • mieszkanie
    • na sprzedaż
    • 2 pokoje
    • 2 piętro

    Prezentujemy Państwu na sprzedaż mieszkanie o powierzchni ok.39m2 usytuowane na atrakcyjnym II piętrze w bloku na os. Piastowskim. Mieszkanie jednostronne, słoneczne,bardzo ciep...

  • Nowe

    Mieszkanie Inowrocław

    Inowrocław

    • 260 000 zł cena
    • 40 m2 powierzchnia
    • 6 500 zł/m2 cena za metr
    • mieszkanie
    • na sprzedaż
    • 2 pokoje
    • 2 piętro

    Prezentujemy Państwu na sprzedaż mieszkanie o powierzchni ok.40m2 usytuowane na II piętrze w bloku z cegły w bardzo atrakcyjnej części na os. Rąbin. Mieszkanie jednostronne, bar...

  • Nowe

    Mieszkanie Inowrocław

    Inowrocław

    • 279 936 zł cena
    • 38 m2 powierzchnia
    • 7 367 zł/m2 cena za metr
    • mieszkanie
    • na sprzedaż
    • 2 pokoje
    • parter

    Prezentujemy Państwu na sprzedaż mieszkanie w stanie developerskim o podwyższonym standardzie o powierzchni o powierzchni 38,88m2 w nowym bloku w uzdrowiskowym Inowrocławiu. Mie...

  • 1 / 2

    Nowe

    Mieszkanie Inowrocław

    Inowrocław

    • 288 000 zł cena
    • 40 m2 powierzchnia
    • 7 200 zł/m2 cena za metr
    • mieszkanie
    • na sprzedaż
    • 2 pokoje

    Prezentujemy Państwu na sprzedaż mieszkanie w stanie developerskim o podwyższonym standardzie o powierzchni od 40m2 w nowym bloku w uzdrowiskowym Inowrocławiu. Wysoki standard w...

Ostatnio dodane

  • Mieszkanie Inowrocław

    Inowrocław

    • 288 982 zł cena
    • 36 m2 powierzchnia
    • 8 028 zł/m2 cena za metr
    • mieszkanie
    • na sprzedaż
    • 2 pokoje
    • 2 piętro

    Prezentujemy Państwu na sprzedaż bardzo atrakcyjną ofertę mieszkania w nowym budownictwie o powierzchni 36,58m2 w Uzdrowiskowym Inowrocławiu. Mieszkanie posiada bardo atrakcyjny...

  • Mieszkanie Inowrocław
    1 / 5
    Mieszkanie Inowrocław

    Inowrocław

    • 255 000 zł cena
    • 34 m2 powierzchnia
    • 7 500 zł/m2 cena za metr
    • mieszkanie
    • na sprzedaż
    • 2 pokoje
    • 2 piętro

    Prezentujemy Państwu na sprzedaż mieszkanie o powierzchni 34,59 m, usytuowane na drugim piętrze w bloku z cegły na osiedlu Nowym w Inowrocławiu. Lokal składa się z salonu z anekse...

  • Dwustronne mieszkanie na osiedlu Toruńskim
    1 / 9
    Dwustronne mieszkanie na osiedlu Toruńskim

    Inowrocław

    • 249 000 zł cena
    • 38 m2 powierzchnia
    • 6 553 zł/m2 cena za metr
    • mieszkanie
    • na sprzedaż
    • 2 pokoje
    • 4 piętro

    Anna Nieruchomości ma przyjemność zaprezentować Państwu przytulne, słoneczne dwupokojowe mieszkanie o powierzchni 38.96 m2 z odrębną kuchnią znajdujące się w bloku położonym przy u...

  • Mieszkanie Inowrocław
    Mieszkanie Inowrocław

    Inowrocław

    • 275 000 zł cena
    • 37 m2 powierzchnia
    • 7 433 zł/m2 cena za metr
    • mieszkanie
    • na sprzedaż
    • 2 pokoje
    • 1 piętro

    Prezentujemy na sprzedaż luksusowe, umeblowane mieszkanie o powierzchni 37,95 m, położone na poszukiwanym PIERWSZYM piętrze w samym sercu osiedla Piastowskiego w INOWROCŁAWIU. Mie...

  • Mieszkanie po generalnym remoncie, ul. Łokietka 7
    1 / 11
    Mieszkanie po generalnym remoncie, ul. Łokietka 7

    Inowrocław

    • 279 000 zł cena
    • 36 m2 powierzchnia
    • 7 750 zł/m2 cena za metr
    • mieszkanie
    • na sprzedaż
    • 2 pokoje
    • 3 piętro

    Zakup bez prowizji dla biura!! Na sprzedaż komfortowe, gotowe do wprowadzenia mieszkanie o powierzchni 37 m², położone na III. piętrze w zadbanym bloku na popularnym osiedlu Piast...

  • 1 / 4

    Nowe

    Mieszkanie Inowrocław

    Inowrocław

    • 280 000 zł cena
    • 39 m2 powierzchnia
    • 7 180 zł/m2 cena za metr
    • mieszkanie
    • na sprzedaż
    • 2 pokoje
    • parter

    Prezentujemy Państwu na sprzedaż ustawne, dwustronne, mieszkanie o powierzchni ok.39m2 usytuowane na wysokim parterze w bloku na os. Toruńskim. Mieszkanie składa się z z dużego...