1 / 8

w Punkt Nieruchomości i Finanse Biuro nieruchomości

Wyślij wiadomośćKontakt z właścicielem
  • Działka w Goleniowski Parku Przemysłowym!
  • Działka w Goleniowski Parku Przemysłowym!
  • Działka w Goleniowski Parku Przemysłowym!
  • Działka w Goleniowski Parku Przemysłowym!
  • Działka w Goleniowski Parku Przemysłowym!
  • Działka w Goleniowski Parku Przemysłowym!
  • Działka w Goleniowski Parku Przemysłowym!
  • Działka w Goleniowski Parku Przemysłowym!

Działka w Goleniowski Parku Przemysłowym!

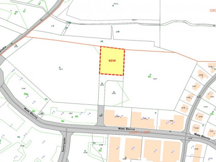
Łozienica [woj. Zachodniopomorskie, pow. goleniowski, gm. goleniowski]

Dodane 4 miesiące temu, Sobota, 25 październik 2025 16:30

1 200 000 zł 5 073 m2
Cena:
1 200 000 zł
Powierzchnia:
5 073 m2
Cena za metr:
237 zł/m2
Typ działki:
Handlowo usługowe
ID oferty:
K37350681
Rynek:
Dzialki na sprzedaż Łozienica

Opis

Polecam na sprzedaż działkę o powierzchni 5 073 mkw. w świetnej lokalizacji i cenie: tylko 1 200 000 PLN netto.

Działka znajduje się w goleniowskim parku przemysłowym blisko węzła drogi ekspresowej S3 i daje możliwość zabudowy do 95%!

Miejscowy Plan Zagospodarowania Przestrzennego przewiduje dla tej działki:
Przeznaczenia podstawowe:
1) obiekty produkcyjne, obiekty składowania i magazynowania;
2) obiekty handlu hurtowego;
3) bazy transportowe i przeładunkowe oraz budowlane;
4) centra badawcze, technologiczne i logistyczne;
5) obiekty wykorzystujące odnawialne źródła energii wraz z zabudową towarzyszącą funkcjonalnie związaną z podstawowym przeznaczeniem, w tym zabudowy systemami fotowoltaicznymi o mocy nie przekraczającej 100kW;
6) myjnie samochodowe, stacje paliw;
7) zabudowa administracyjno- socjalna;

Dopuszcza się przeznaczenia uzupełniające:
1) obiekty i usługi z zakresu komunikacji;
2) usługi towarzyszące funkcji podstawowej;
3) portiernie;
4) dojazdy o szerokości minimalnej 8 m;
5) sieci i urządzenia infrastruktury technicznej;
6) miejsca postojowe, parkingi, wiaty przystankowe;
7) zieleń w tym zieleń urządzona wraz z małą architekturą oraz hodowla roślin ozdobnych;
8) zbiorniki retencyjne i przeciwpożarowe oraz cieki wodne i rowy melioracyjne;
9) ciągi piesze, rowerowe i utwardzone place.

W zakresie zasad kształtowania zabudowy oraz wskaźników zagospodarowania terenów,, ustala się:
1) wysokość budynków nie większa niż 27 m,
2) wysokość budowli nie większa niż 70 m;
3) liczbę kondygnacji nie większą niż 3;
4) powierzchnię zabudowy nie większą niż 95% powierzchni działki budowlanej;
5) wskaźniki intensywności zabudowy od 0,1 do 2,85;
6) powierzchnię biologicznie czynną nie mniejszą niż 5% powierzchni działki budowlanej;
7) dachy o dowolnej konstrukcji i kształcie;
8) obowiązek kształtowania zabudowy zgodnie z ustalonymi liniami zabudowy.

Zapraszam do osobistej weryfikacji tej oferty!





Bezpieczeństwo transakcji zapewnia w Punkt Nieruchomości i Finanse:
-darmowa pomoc Eksperta przy uzyskaniu najkorzystniejszego kredytu hipotecznego na rynku
-preferencyjne warunki opłat u Notariusza, Rzeczoznawcy Majątkowego i Ubezpieczenia
-organizujemy proces uzyskania Świadectwa Charakterystyki Energetycznej
-pełne bezpieczeństwo kupna i sprzedaży na podstawie polisy OC na 500 000 EURO
-kompleksowe wsparcie Agenta podczas całego procesu transakcji, a nawet po Nim
-kompleksowe i bezpieczne przeprowadzenie jednoczesnej transakcji sprzedaży posiadanej nieruchomości i kupna nowej

Jeżeli potrzebujesz gotówki za swoją nieruchomość "od ręki" oferujemy program Ekspresowej Sprzedaży- środki wypłacane nawet na następny dzień.

Treść niniejszego ogłoszenia nie stanowi oferty handlowej w rozumieniu Kodeksu Cywilnego. Treść ma charakter informacyjny i zalecamy ich osobistą weryfikację.

Oferta wysłana z programu dla biur nieruchomości ASARI CRM (asaricrm.com)
  • Data aktualizacji: 2025-10-25
  • ID ogłoszenia: K37350681
Wydrukuj Zgłoś naruszenie
Chcesz mieć na oku podobne nieruchomości?
Włącz powiadomienia i nie przegap okazji!
*Działki na sprzedaż Łozienica, cena: od 1 020 000 do 1 380 000 zł, powierzchnia: od 4313 do 5834 m2

Kontakt

w Punkt Nieruchomości i Finanse Biuro nieruchomości

Wyślij wiadomośćKontakt z właścicielem
Wydrukuj Zgłoś naruszenie

Podobne ogłoszenia

  • 1 / 3
    Działka Szczecin

    Szczecin

    • 25 645 924 zł cena
    • 33 903 m2 powierzchnia
    • 757 zł/m2 cena za metr
    • działka
    • na sprzedaż
    • handlowo usługowa

    Nieruchomość niezabudowana, położona w dzielnicy Bukowo, aktualnie wydane są warunki zabudowy na wybudowanie na działce kompleksu obiektów, takich jak: sklep wielkopowierzchniowy o...

  • Działka przeznaczona  pod produkcję, magazyny
    1 / 12
    Działka przeznaczona pod produkcję, magazyny

    Łozienica

    • 6 896 500 zł cena
    • 27 586 m2 powierzchnia
    • 250 zł/m2 cena za metr
    • działka
    • na sprzedaż
    • handlowo usługowa

    DZIAŁKA/ZESPÓŁ DZIAŁEK położonych w Goleniowskim Parku Przemysłowym – teren objęty inwestycyjny pod produkcję, magazyny, logistykę. Jedna z ostatnich lokalizacji w GPP. 4 działki...

  • 1 / 4
    Działka Szczecin, ul. Włoska

    Szczecin » ul. Włoska

    • 710 000 zł cena
    • 1 766 m2 powierzchnia
    • 403 zł/m2 cena za metr
    • działka
    • na sprzedaż
    • handlowo usługowa

    OGŁOSZENIE PREZYDENTA MIASTA SZCZECIN z dnia 25 lutego 2026 r. o przetargu ustnym nieograniczonym na sprzedaż nieruchomości położonej w Szczecinie w rejonie ulicy Włoskiej, dzia...

  • Działka Szczecin, ul. Pyrzycka

    Szczecin » ul. Pyrzycka

    • 1 200 000 zł cena
    • 3 024 m2 powierzchnia
    • 397 zł/m2 cena za metr
    • działka
    • na sprzedaż
    • handlowo usługowa

    OGŁOSZENIE PREZYDENTA MIASTA SZCZECIN z dnia 26 stycznia 2026 r. o drugim przetargu ustnym nieograniczonym na sprzedaż nieruchomości położonej w Szczecinie przy ulicy Pyrzyckiej...

  • Działaka w Strefie przemysłowej z wszystkimi udogodnieniam
    1 / 4
    Działaka w Strefie przemysłowej z wszystkimi udogodnieniam

    Goleniów

    • 7 900 000 zł cena
    • 27 586 m2 powierzchnia
    • 287 zł/m2 cena za metr
    • działka
    • na sprzedaż
    • handlowo usługowa

    Działki o łącznej powierzchni 27 586 m² 1221/24; 1221/25; 1221/26; 1221/27. Nieruchomość gruntowa, położona w Goleniowskim Parku Przemysłowym. Teren obięty MPZP nie wymaga Decyzji...

  • Działka Szczecin, ul. Przestrzenna

    Szczecin » ul. Przestrzenna

    • 1 500 000 zł cena
    • 4 178 m2 powierzchnia
    • 360 zł/m2 cena za metr
    • działka
    • na sprzedaż
    • handlowo usługowa

    OgłoszeniePrezydenta Miasta Szczecinz dnia 16 marca 2026 r.o przetargu ustnym nieograniczonym na sprzedaż nieruchomości położonych w Szczecinie w rejonie ulicy Przestrzennej, dział...

Ostatnio dodane

  • Działka Tanowo,0.3362ha,plan miejsc.-rolna.

    Tanowo » ul. Szczecińska

    • 504 000 zł cena
    • 3 362 m2 powierzchnia
    • 150 zł/m2 cena za metr
    • działka
    • na sprzedaż
    • handlowo usługowa

    Nieruchomość gruntowa niezabudowana zlokalizowana w m. Tanowo, gm. Police, powiat policki, woj. zachodniopomorskie, ul. Szczecińska, o powierzchni 0.3362 ha.Rodzaj użytku: Ł IV 0...

  • Działka Szczecin, ul. Romana Dmowskiego

    Szczecin » rondo Dmowskiego

    • 500 000 zł cena
    • 1 527 m2 powierzchnia
    • 328 zł/m2 cena za metr
    • działka
    • na sprzedaż
    • handlowo usługowa

    OGŁOSZENIEPREZYDENTA MIASTA SZCZECINz dnia 4 marca 2026 r.o przetargu ustnym nieograniczonym na sprzedaż nieruchomości położonej w Szczecinie w rejonie ulicy Romana Dmowskiego, dzi...

  • 1 / 3
    Działka Szczecin, ul. Energetyków

    Szczecin » ul. Energetyków

    • 19 000 000 zł cena
    • 6 180 m2 powierzchnia
    • 3 075 zł/m2 cena za metr
    • działka
    • na sprzedaż
    • handlowo usługowa

    OGŁOSZENIEPREZYDENTA MIASTA SZCZECINz dnia 11 marca 2026 r.o przetargu ustnym nieograniczonym na sprzedaż nieruchomości położonej w Szczecinie przy ulicy Energetyków 40, działka 5/...