1 / 3

Patronus Nieruchomości Biuro nieruchomości

Wyślij wiadomośćKontakt z właścicielem
  • Dom Inowrocław
  • Dom Inowrocław
  • Dom Inowrocław

Dom Inowrocław

Inowrocław [woj. Kujawsko-Pomorskie, pow. inowrocławski, gm. inowrocławski]

Dodane 1 rok temu, Wtorek, 12 listopad 2024 15:21

487 500 zł 76 m2
Cena:
487 500 zł
Powierzchnia:
76 m2
Cena za metr:
6 415 zł/m2
Powierzchnia działki:
180 m2
Typ domu:
Bliźniaki
ID oferty:
K36887141
Rynek:
Domy na sprzedaż Inowrocław

Opis

Prezentujemy Państwu na sprzedaż budynek w zabudowie bliźniaczej o łącznej powierzchni 75,74, działka ogrodzona 180m2. Dom w stanie deweloperskim.
- miejsce parkingowe,
- ogrzewanie podłogowe (ogrzewanie gazowe)
- okna zewnętrzne PVC, trzyszybowe
- rolety zewnętrzne, antywłamaniowe, sterowane elektrycznie,
- drzwi zewnętrzne antywłamaniowe,
- instalacja elektryczna,
- tynki gipsowe,
- ściany budynku zostały wykonane z betonu komórkowego Solbet i ocieplone styropianem o grubości 20 cm.
- bardzo dobra lokalizacja, w spokojnej okolicy, z dojściem i dojazdem z drogi asfaltowej
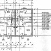
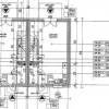
NIERUCHOMOŚĆ SKŁADA SIĘ Z:
Parter
- salon z aneksem kuchennym - 31,16m
- przedsionek - 1,40m
- wc z kotłownią / z możliwością wykorzystania na pralnio suszarnie - 2,9m - schowek - 1,05 m

Piętro
- Pokój - 10,36m2
- Pokój - 9,03m2
- Pokój - 7,36m2
- Łazienka - 4,82m2
- korytarz - 3,36m2
- Klatka schodowa - 2,15m2
działka nr 116/14

Serdecznie zapraszamy na prezentację.

Oferujemy bezpłatną pomoc w uzyskaniu kredytu.

Oferta nr 1818
tel. Pokaż numer telefonu

DANE KONTAKTOWE:

Pokaż numer telefonu, Pokaż numer telefonu
[email] />
LINK DO OFERTY:
http://patronus.nieuchomosci.pl/numer/1818

Treść niniejszego ogłoszenia nie stanowi oferty handlowej w rozumieniu Kodeksu Cywilnego.

Oferta wysłana z programu IMO dla biur nieruchomości

Numer oferty: 1818
  • Data aktualizacji: 2024-11-13
  • ID ogłoszenia: K36887141
Wydrukuj Zgłoś naruszenie
Chcesz mieć na oku podobne nieruchomości?
Włącz powiadomienia i nie przegap okazji!
*Domy na sprzedaż Inowrocław, cena: od 414 375 do 560 625 zł, powierzchnia: od 65 do 88 m2

Kontakt

Patronus Nieruchomości Biuro nieruchomości

Wyślij wiadomośćKontakt z właścicielem
Wydrukuj Zgłoś naruszenie

Podobne ogłoszenia

  • Dom Inowrocław

    Inowrocław

    • 429 000 zł cena
    • 87 m2 powierzchnia
    • 4 932 zł/m2 cena za metr
    • dom
    • na sprzedaż

    Prezentujemy Państwu na sprzedaż dom o powierzchni 87m2 usytuowany na dużej działce o powierzchni ok.2000m2. Dom składa się z dwóch oddzielnych pokoi, kuchni, przedpokoju oraz ł...

  • Dom Inowrocław

    Inowrocław

    • 629 000 zł cena
    • 94 m2 powierzchnia
    • 6 692 zł/m2 cena za metr
    • dom
    • na sprzedaż
    • szeregowiec

    Prezentujemy Państwu na sprzedaż ofertę atrakcyjnego domu w zabudowie szeregowej o powierzchni ok. 94m2 na działce ok.150m2. Parter składa się z - salon z aneksem kuchennym or...

  • Dom szeregowiec
    1 / 19
    Dom szeregowiec

    Inowrocław

    • 421 800 zł cena
    • 74 m2 powierzchnia
    • 5 700 zł/m2 cena za metr
    • dom
    • na sprzedaż

    Barn-net Maciej Baran
    Biuro nieruchomości

  • 1 / 3
    Dom Inowrocław

    Inowrocław

    • 460 000 zł cena
    • 80 m2 powierzchnia
    • 5 750 zł/m2 cena za metr
    • dom
    • na sprzedaż
    • wolnostojący

    OFERTA DOSTĘPNA TYLKO W NASZYM BIURZE ! Oferujemy na sprzedaż nowoczesny, parterowy dom wolnostojący o powierzchni około 80m2, usytuowany na działce o powierzchni około 600m2....

  • Dom Inowrocław
    Dom Inowrocław

    Inowrocław

    • 510 000 zł cena
    • 93 m2 powierzchnia
    • 5 484 zł/m2 cena za metr
    • dom
    • na sprzedaż

    Na sprzedaż nowy dom w zabudowie szeregowej o powierzchni 93 m, w stanie deweloperskim. Układ pomieszczeń: * przestronny salon z aneksem kuchennym, * dwie sypialnie, * łazienka,...

  • Nowoczesny apartament z garażem w Inowrocławiu
    1 / 11
    Nowoczesny apartament z garażem w Inowrocławiu

    Inowrocław

    • 510 000 zł cena
    • 93 m2 powierzchnia
    • 5 484 zł/m2 cena za metr
    • dom
    • na sprzedaż

    Anna Nieruchomości prezentuje na sprzedaż nowoczesny apartament w zabudowie szeregowej do własnej aranżacji charakteryzujące się nowoczesnym rozkładem pomieszczeń w doskonałej loka...

Ostatnio dodane

  • Domek letniskowy przy linii brzegowej jeziora Popielewskiego
    1 / 13
    Domek letniskowy przy linii brzegowej jeziora Popielewskiego

    Trzemeszno

    • 499 000 zł cena
    • 61 m2 powierzchnia
    • 8 181 zł/m2 cena za metr
    • dom
    • na sprzedaż

    Zapraszam do zapoznania się z ofertą sprzedaży przestronnego domu letniskowego. Zlokalizowany w malowniczej okolicy Trzemeszna, nieruchomość zachwyca swoim urokiem i idealnym położ...

  • Urokliwy dom
    1 / 6
    Urokliwy dom

    Nowa Wieś

    • 555 000 zł cena
    • 90 m2 powierzchnia
    • 6 167 zł/m2 cena za metr
    • dom
    • na sprzedaż

    CZAS NIERUCHOMOŚCI
    Biuro nieruchomości

  • Na sprzedaż dom przy jeziorze Powidzkim
    1 / 8
    Na sprzedaż dom przy jeziorze Powidzkim

    Powidz

    • 449 000 zł cena
    • 77 m2 powierzchnia
    • 5 832 zł/m2 cena za metr
    • dom
    • na sprzedaż

    CZAS NIERUCHOMOŚCI
    Biuro nieruchomości

  • Dom bliźniak
    1 / 9
    Dom bliźniak

    Drzewce

    • 570 000 zł cena
    • 90 m2 powierzchnia
    • 6 334 zł/m2 cena za metr
    • dom
    • na sprzedaż

    Biuro Pośrednictwa w Obrocie Nieruchomościami Bogusław Ojczenasz
    Biuro nieruchomości

  • 1 / 3
    Dom Nowa Wieś

    Nowa Wieś

    • 555 000 zł cena
    • 90 m2 powierzchnia
    • 6 167 zł/m2 cena za metr
    • dom
    • na sprzedaż

    Prezentujemy Państwu na sprzedaż przytulny całoroczny domek o całkowitej powierzchni około 90 m2. Nieruchomość położona blisko Przyjezierza. Na parterze domu znajduje się salon...

  • Dom Inowrocław

    Inowrocław

    • 375 000 zł cena
    • 57 m2 powierzchnia
    • 6 579 zł/m2 cena za metr
    • dom
    • na sprzedaż

    Gorąco polecam dom letniskowy w Wiktorowie wieś w województwie kujawsko-pomorskim, w powiecie żnińskim, w gminie Gąsawa. Wieś leży nad jeziorem Ostróweckim. Ten przytulny wypoczyn...